Gaszowice, Czernica

Dom na sprzedaż

Opis nieruchomości

Dom wolnostojący w stanie deweloperskim, pow. użytkowa 118,34 m2 (111,34 m2 bez ścian). 4pokoje + salon, Czernica, Gmina Gaszowice, powiat rybnicki. Działka o powierzchni 787 m2.  Nowa oferta, cena 699000 złOferta na wyłączność biura, nie szukaj dalej. 

Biuro Nieruchomości Marcin Roś ma przyjemność zaprezentować Państwu - ofertę na sprzedaż "dom jednorodzinny wolnostojący" położony w Czernicy, gminie Gaszowice, w powiecie rybnickim. 118,34 m2 powierzchni użytkowej (111,34 m2 bez ścian działowych) i bardzo funkcjonalny układ pomieszczeń to idealna propozycja dla rodziny jak i osób starszych.. Na parterze znajduje się przestronny salon z otwartą kuchnią, łazienka z miejscem na kabinę prysznicową i WC, spiżarnia, przedpokój i pomieszczenie gospodarcze i sypialnia, ewentualne biuro.. Na piętrze - trzy duże sypialnie, garderoba oraz duża łazienka. Każdy z domowników znajdzie więc swoją prywatną przestrzeń – będzie mógł w spokoju odpoczywać, pracować, uczyć się lub rozwijać swoje zainteresowania. Z salonu wychodzimy na taras i do prywatnego ogrodu,(w kształcie litery L) idealnej przestrzeni do odpoczynku na świeżym powietrzu. Przed budynkiem dwa miejsca postojowe. Budyek wyróżnia się estetyczną, przyjemną dla oka architekturą oraz kolorystyką elewacji. Największym atutem inwestycji jest to, że dom jest już wybudowany, oddany do użytkowania, w pełni ogrodzony, z przydzielonym numerem porządkowym, przygotowany do finalnych prac wykończeniowych (wykończenie wnętrz).

Budynek mieszkalny powstał w 2024r. ze sprawdzonych materiałów, z zastosowaniem wysokiej klasy izolacji termicznej i akustycznej. W budynku zastosowano nowoczesne, ekologiczne i energooszczędne elektryczne ogrzewanie podłogowe z pełną automatyką sterowaną z poziomu smartfona. Elektryczne ogrzewanie podłogowe to sprawdzone i oszczędne rozwiązania dopasowane w najwyższym stopniu do potrzeb nowoczesnej rodziny. Oznacza to brak dodatkowych kosztów związanych z zakupem źródła ciepła, co w wielu innych konkurencyjnych inwestycjach jest jeszcze koniecznością. Ponadto przygotowano instalacje do podłączenia paneli fotowoltaicznych co w znacznym stopniu zredukuje koszty użytkowania. Dodatkowo w salonie przygotowane miejsce wraz z instalacją na kominek wraz z rozprowadzeniem grawitacyjnym ciepła.Duża ilość naturalnego światła, które wpada do wnętrza, przemyślany układ pomieszczeń oraz własny ogród tworzą miejsce do codziennego wygodnego życia. Jest to świetny wybór dla osób, które szukają komfortowej przestrzeni w spokojnym otoczeniu, blisko zieleni, ale także z dobrym dostępem do infrastruktury miejskiej. To idealne miejsce dla Ciebie i Twojej rodziny.

Inwestycja znajduje się w niewielkiej miejscowości Czernica przy ul. Wolności.  Lokalizację wyróżnia przede wszystkim bardzo komfortowy dojazd do większych miast – Rybnika, Gliwic, Raciborza, Katowic czy nawet Pszczyny. Bezpośrednie sąsiedztwo inwestycji to przede wszystkim niska zabudowa jednorodzinna, okoliczne lasy, łąki i tereny rekreacyjne.  Umiarkowanie cicha i bezpieczna okolica, w której panuje klimat sprzyjający wypoczynkowi po pracy. Wiele ścieżek i tras idealnych na długie spacery lub wycieczki rowerowe. W samej Czernicy znajdziesz m.in. sklep spożywczy, warsztat samochodowy, kościół, szkołę podstawową, przedszkole, boisko sportowe, czy popularny w rejonie ośrodek kultury „Zameczek”. Dojazd do najbliższego dużego centrum handlowego w Rydułtowach zajmuje 5 minut. W niedalekiej przyszłości zrealizowany będzie drugi etap budowy obwodnicy Pszczyna - Racibórz, która przebiegać będzie zaledwie kilka kilometrów od inwestycji.

Media przyłączone do budynku:

- energia elektryczna,
- woda z wodociągu,
- kanalizacja (szambo).

Powierzchnie pomieszczeń (dla oferowanego lokalu):

PARTER: 61,41 m2

- Wiatrołap - 4,51  m
- Salon+jadalnia - 27,77 m2
- Kuchnia - 9,14 m2
- Pokój nr 1 - 10,64 m2
- Spiżarnia - 2,03 m2
- Łazienka - 3,28 m2
- Kotłownia - 4,04 m2

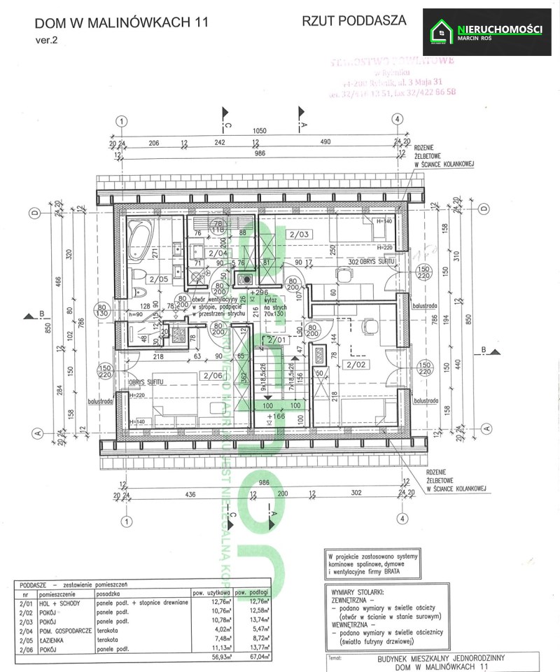
PODDASZE: 56,93 m2

- Hol + schody - 12,76 m2
- Łazienka - 7,48 m2
- Pokój 2 - 10,76 m2
- Pomieszczenie gospodarcze -  4,02 m2
- Pokój 3 - 10,78 m2
- Pokój 4 - 11,13 m2

ŁĄCZNIE: 118,34 m2


Dodatkowym atutem prezentowanego budynku jest strych (płyta OSB)), nie wliczony do powierzchni użytkowej, na którym możemy przechowywać różne przedmioty sezonowe, np. garderobę sezonową itp.

Do budowy budynku wykorzystano wysokiej jakości materiały:

- Materiał ścian konstrukcyjnych - Termobet 24 cm, ściany działowe 12 cm
- Dachówka cementowa - Bras 
- Elewacja - ocieplenie styropianem o grubości 20 cm, tynk silikonowy
- Kostka brukowa - marki Bruk, model Bruk prosty, multicolor Gothic
- Stolrka okienna firmy Drutex
- Schody strychowe na poddasze 
- Obróbki blacharskie kominów jak i samego dachu
- Gotowe instalacje pod panele fotowoltaiczne
- Tynki wewnętrzne gipsowe firmy Bau-mit
- Działka ogrodzona, panele.
- Fundamenty ocieplone styropianem specjalnym

W najbliższej odległości:

- Sklep spożywczy - 1500 m
- Szkoła podstawowa - 800 m
- Przedszkole - 800 m 
- Komunikacja publiczna - 800 m

Atuty nieruchomości:

- Bardzo dobra lokalizacja
- Komfortowe rozwiązania wnętrza
- Wysoki standard wykonania
- Kameralny charakter
- Dostępne media
- Brak ryzyka
- Duża ilośc zieleni w okolicy
- Dobra komunikacja
- Niska zabudowa w okolicy
- Bliska odległość do szkoły i przedszkola
- Kościół w pobliżu
- Bardzo spokojna okolica
- Okna 3-szybowe 
- Dach dwuspadowy z dachówki cementowej
- Wysokiej klasy izolacja termiczna
- Wygodne parkowanie
- Ekologiczne i automatyczne ogrzewanie
- Maksymalna prywatność
- Materiały wysokiej klasy
- Domy już wybudowane
- Przygotowane instalację do podłączenia paneli fotowoltaicznych

Szczegółowych informacji udziela prowadzący ofertę Marcin Roś tel: 500 164 559
                                                                                     

Serdecznie zapraszamy na prezentację nieruchomości.

Zapewniamy pomoc przy finalizacji transakcji od prezentacji oferty, za pośrednictwem naszego specjalisty kredytowego pomagamy w finansowaniu zakupu, kończąc na przekazaniu nieruchomości.


Opis oferty zawarty w jej treści sporządzany jest na podstawie oględzin nieruchomości oraz informacji uzyskanych od właściciela, może podlegać aktualizacji i nie stanowi oferty określonej w art. 66 i następnych K.C.

Nota prawna

Opis oferty zawarty na stronie internetowej sporządzany jest na podstawie oględzin nieruchomości oraz informacji uzyskanych od właściciela, może podlegać aktualizacji i nie stanowi oferty określonej w art. 66 i następnych K.C.

Szczegóły oferty

Symbol oferty MROS-DS-416
Powierzchnia 118,34 m²
Powierzchnia użytkowa 118,34 m²
Powierzchnia działki 787 m²
Powierzchnia balkonów/tarasów 10,00 m²
Liczba pokoi 5
Rodzaj domu wolnostojący
Technologia budowlana inny
Standard
Stan prawny Własność
Okna PCV
Instalacje ELEKTRYCZNA, WODNA
Balkon brak
Liczba tarasów 1
Zagosp. działki częściowo zagospodarowana
Ukształtowanie działki NIEREGULARNY
Kształt działki prostokąt
Pokrycie dachu dachówka betonowa
Stan budynku do wykończenia
Ogrodzenie działki INNE
Rok budowy 2024
Gaz brak
Woda jest
Dojazd ASFALTOWA
Otoczenie zabudowa jednorodzinna
Ogrzewanie C.O. ELEKTRYCZNE,C.O. WŁASNE
Umeblowanie puste
Alarm tak
Odległość do komunikacji publicznej [m] 800 m
Odl. do sklepu [m] 1 500 m
Odl. do szkoły [m] 800 m
Odl. do przedszkola [m] 800 m
Tarasy taras
Prąd jest
Kanalizacja szambo

Kalkulator kredytowy

PLN
%
Wysokość raty

Kalkulator kosztów

PLN
PLN
PLN
PLN
PLN
PLN
%
PLN
Podatek od czynności cywilno-prawnych
Taksa notarialna (opłata notarialna)
VAT od taksy notarialnej (opłaty notarialnej)
Wniosek do WKW
VAT od wniosku do WKW
Prowizja agencji nieruchomości
VAT od prowizji agencji nieruchomości
Wypisy aktu notarialnego - około
RAZEM (cena + opłaty)

Uwaga: mogą wystąpić dodatkowe opłaty za założenie księgi wieczystej oraz ustanowienie hipoteki.

Napisz do nas

Proszę wypełnić to pole
Proszę wypełnić to pole
Proszę wypełnić to pole
Proszę wypełnić to pole

Ta strona wykorzystuje pliki cookies w celach statystycznych oraz w celu dostosowania naszych serwisów do indywidualnych potrzeb klientów. Zmiany ustawień dotyczących plików cookie można dokonać w dowolnej chwili modyfikując ustawienia przeglądarki. Korzystanie z tej strony bez zmian ustawień dotyczących cookies oznacza, że będą one zapisane w pamięci urządzenia.

rozumiem
Nieruchomości Marcin Roś